Traditional
18 Temerario Place
Hot Springs Village , AR 71909
MLS#: 25040994
$625,000

Property
Beds
3
Full Baths
3
1/2 Baths
None
Year Built
2013
Sq.Footage
3,406
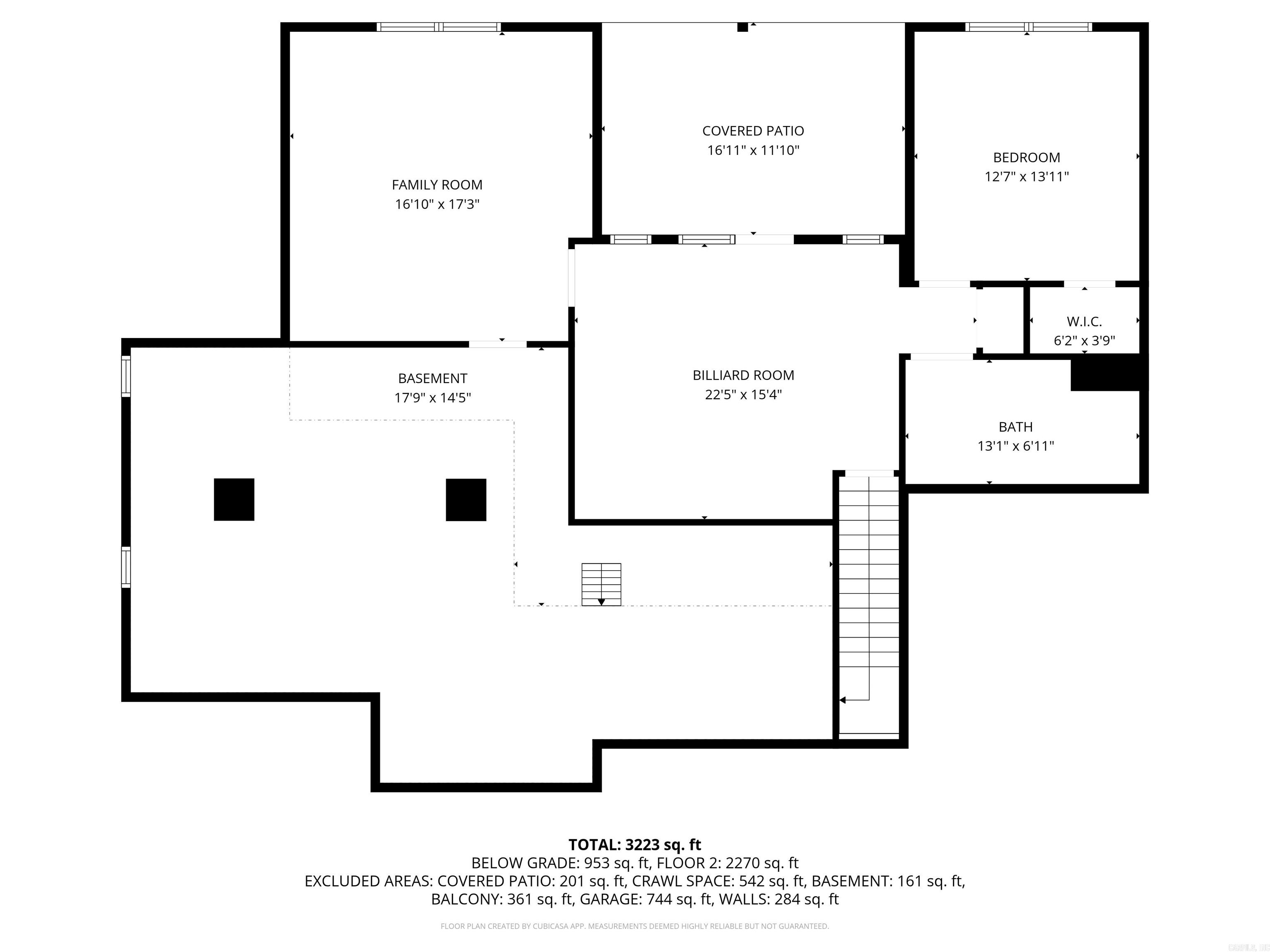
Exquisite Custom Home by Ben White with Golf Course and Water Views - Step into timeless elegance with this beautifully appointed custom residence crafted by renowned builder Ben White. Nestled along the scenic fairways of the Isabella Golf Course, this 3-bedroom, 3-bath masterpiece built on a .63 lot offers great views of hole #6 - a stunning par 4 framed by a water feature. Inside, you'll find high-end finishes throughout, including rich hickory flooring, volume ceilings, crown molding and an impressive stone fireplace with built in framed TV. The central kitchen features a premium Thermador cooktop and an abundance of custom cabinetry providing lots of storage. The entry level includes two bedrooms, a sunroom, small office, large laundry room, and covered deck with trek flooring for outside enjoyment. Downstairs you'll find a game room, family room, 3rd bedroom with full bath; and covered patio. (See floor plan for full details) Whether you're entertaining friends/family or just enjoying the golf views, this home delivers luxury living at its finest! Don't miss your chance to own this exceptional property in Hot Springs Village! See Agent Remarks for more details.
Features & Amenities
Interior
-
Other Interior Features
Breakfast Bar, Walk-In Closet(s), Pantry
-
Total Bedrooms
3
-
Bathrooms
3
-
Cooling YN
YES
-
Cooling
Ceiling Fan(s)
-
Heating YN
YES
-
Heating
Heat Pump
-
Pet friendly
N/A
Exterior
-
Garage
Yes
-
Garage spaces
2
-
Construction Materials
Stone
-
Parking
Garage Door Opener
-
Patio and Porch Features
Deck, Patio
-
Pool
No
Area & Lot
-
Lot Features
On Golf Course, Sloped
-
Lot Size(acres)
0.63
-
Property Type
Residential
-
Property Sub Type
Single Family Residence
-
Architectural Style
Traditional
Price
-
Sales Price
$625,000
-
Tax Amount
1657.0
-
Zoning
Residentia
-
Sq. Footage
3, 406
-
Price/SqFt
$183
HOA
-
Association
YES
-
Association Fee
$113
-
Association Fee Frequency
Monthly
-
Association Fee Includes
N/A
School District
-
Elementary School
Fountain Lake
-
Middle School
Fountain Lake
-
High School
Fountain Lake
Property Features
-
Stories
2
-
Sewer
Public Sewer
Schedule a Showing
Showing scheduled successfully.
Mortgage calculator
Estimate your monthly mortgage payment, including the principal and interest, property taxes, and HOA. Adjust the values to generate a more accurate rate.
Your payment
Principal and Interest:
$
Property taxes:
$
HOA fees:
$
Total loan payment:
$
Total interest amount:
$
Location
County
Garland
Elementary School
Fountain Lake
Middle School
Fountain Lake
High School
Fountain Lake
Listing Courtesy of Patricia Bollier , RE/MAX of Hot Springs Village
RealHub Information is provided exclusively for consumers' personal, non-commercial use, and it may not be used for any purpose other than to identify prospective properties consumers may be interested in purchasing. All information deemed reliable but not guaranteed and should be independently verified. All properties are subject to prior sale, change or withdrawal. RealHub website owner shall not be responsible for any typographical errors, misinformation, misprints and shall be held totally harmless.

REALTORĀ®
ErikaNava
Call Erika today to schedule a private showing.

* Listings on this website come from the FMLS IDX Compilation and may be held by brokerage firms other than the owner of this website. The listing brokerage is identified in any listing details. Information is deemed reliable but is not guaranteed. If you believe any FMLS listing contains material that infringes your copyrighted work please click here to review our DMCA policy and learn how to submit a takedown request.Ā© 2024 FMLS.
